Atmos DC 30 SX - 30 kw este un cazan pe lemne, cu gazeificare, construit din tabla de otel de 3 - 8 mm grosime, dotat cu exhaustor de fum si serpentina de racire, pentru protectie impotriva supraincalzirii.
Cazanele ATMOS din gama DC18S - DC50S sunt alcatuite dintr-o camera de gazeificare cilindrica, cu drumurile de aer in partea posterioara - unde se preincalzeste aerul primar si cel secundar - din duza ceramica si din ceramica inferioara. Cazanele ecologice ATMOS DC 18/ 20/ 22/ 25/ 30/ 32/ 40/ 50/ 75 sunt destinate incalzirii caselor, cabanelor sau a altor constructii similare. Cazanele pot satisface un necesar de caldura a constructiei de 20-75 KW, in functie tip. Cazanele sunt construite exclusiv pentru arderea lemnelor taiate in bucati. Poate fi utilizat orice tip de lemn uscat. Corpul cazanului este confectionat din tabla de otel sudata de 3-8 mm si este format din rezervorul de alimentare cu combustibil care, in partea sa inferioara, este prevazuta cu piesa ceramica termorefractara cu fanta longitudinala pentru comunicare cu camera secundara.
Cazanele ATMOS sunt caracterizate de dimensiuni reduse, greutate scazuta si mecanism de reglare simplu. Pentru o functionare optima, cazanul trebuie sa fie dotat cu un ventil termoregulator care sa asigure o temperatura minima a apei de retur de minim 65°C. Temperatura agentului termic in cazan trebuie sa fie mentinuta in intervalul 80 - 90°C. Se recomanda utilizarea rezervoarelor de acumulare. Cazanele nu pot fi instalate in camere de locuit. Acestea trebuie instalate in incaperi bine ventilate.
Caracteristici tehnice:
- combustibil recomandat: lemn uscat cu putere calorica 15-17 Mj.kg-1, cu o umiditate cuprinsa intre 12 - 20% si cu diametrul cuprins intre 80 - 150 mm
- puterea cazanului: 21 - 30 kw
- randamentul cazanului: 80-89 %
- presiune maxima de lucru: 2.5 bar
- temperatura minima obligatorie a apei din retur la functionarea cazanului: 65°C
- temperatura obligatorie de lucru a cazanului este de 80 - 90°C
- volumul apei din cazan: 58 litri
- diametru racordare cos evacuare gaze arse: 152 mm
- dimensiuni usa de alimentare: 450 x 260 mm
- lungimea maxima a butucilor: 530 mm
- dimensiuni cazan - Inaltime x Latime x Adancime: 1180 x 590 x 1045 mm
- greutate cazan: 306 kg
- tensiune de alimentare electrica: 230 / 50 - V / Hz
- putere electrica absorbita: 50 W
- clasa de protectie electrica: IP20
Instalare
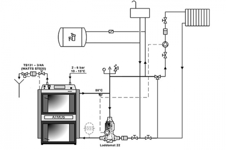
Cazanele de gazeificare pe lemne ATMOS trebuie conectate cu LADDOMAT 22 sau o supapă de termoreglare (vană cu trei căi controlată de un actuator în cazul utilizării controlului electronic ATMOS ACD 03) pentru a atinge o temperatură minimă a apei de retur în cazan de 65 °C. Temperatura de ieșire a cazanului trebuie menținută constant în intervalul 80 – 90 °C.
Toate cazanele sunt livrate într-o versiune de bază cu o buclă de răcire împotriva supraîncălzirii. Recomandăm instalarea cazanelor cu rezervoare de stocare, care vor reduce consumul de combustibil și vor crește confortul de încălzire.
Regularea cazanelor
Reglarea electromecanică – reglarea puterii cazanului se efectuează cu ajutorul clapetei de reglare aer comandate prin dispozitivul de reglare a tirajului, tip FR 124, care, automat, în funcție de temperatura setată a apei de ieșire (80 – 90 °C), deschide sau închide parțial clapeta de aer. Dispozitivul de reglare a tirajului, pe lângă reglarea puterii, ajută cu protecția cazanului contra supraîncălzirii. Avantajul acestuia este pornirea rapidă a încălzirii și trecerea la puterea cerută când clapeta de aer este deschisă complet. Pe panoul de aparate, cazanele sunt echipate cu termostat de reglare care comandă exhaustorul în funcție de temperatura setată a apei de ieșire (80 – 85 °C) și cu termostatul de gaze de evacuare care servește pentru oprirea cazanului și decuplarea exhaustorului în urma arderii complete a combustibilului. În cazul conectării cazanului cu rezervoarele de acumulare, termostatul pentru gazele de evacuare comandă și funcționarea pompei în circuitul cazanului.
Avantajul reglării și al construcției cazanelor ATMOS este și faptul că aceste cazane funcționează, cu tirajul bun al cazanului de până la 70 % din puterea nominală, și fără ventilator.